Planrahmen einfügen
| Multifunktionsleiste: | Register ATHENA > Gruppe Beschriften > Planrahmen einfügen |
Menü: | ATHENA > Block > Planrahmen einfügen |
Werkzeugkasten: | ATH Block > Planrahmen einfügen ATHENA Block > Planrahmen einfügen |
Befehlseingabe: | ath_plan |
Mit diesem Befehl können Sie einen Planrahmen mit Schriftfeld in die Zeichnung einfügen. Zur Auswahl stehen Planrahmen in den Formaten DIN A4 bis DIN A0 (jeweils horizontal und vertikal) sowie drei verschiedene Schriftfelder. Sie haben die Möglichkeit auch eigene Planrahmen und Schriftfelder zu integrieren.
Zum Ausfüllen des Schriftfeldes in dem Planrahmen können Sie den ATHENA Befehl
Plankopf ausfüllen verwenden.
Dialogfeld Planrahmen/Plankopf
db_ath_plan
Rahmen
Bestimmt den Planrahmen, den Sie in die Zeichnung einfügen. Unterhalb der Liste werden Speicherort und Dateiname der Planrahmenzeichnung angezeigt.
Maßstab
Definiert den Maßstab für den Planrahmen und den Plankopf. Hier werden die Maßstäbe aus der AutoCAD Maßstabsliste zur Verfügung gestellt. Weitere Informationen dazu finden Sie in der AutoCAD Dokumentation.
Plankopf
Bestimmt den Plankopf, den Sie in die Zeichnung einfügen. Unterhalb der Vorschaubilder wird der Dateiname der Plankopfzeichnung angezeigt. Mit den Schaltflächen Weiter und Zurück blättern Sie in die nächste bzw. vorhergehende Ansicht, wenn Sie über mehr als sechs Planköpfe verfügen.
Schalter Rahmen
Aktiviert oder deaktiviert das Einfügen des Planrahmens.
Schalter Plankopf
Aktiviert oder deaktiviert das Einfügen des Plankopfes.
Klicken Sie nun die Schaltfläche OK, wird das Dialogfeld beendet und folgende Eingabeaufforderung erscheint in der Befehlszeile:
Eingabeaufforderung
Einfügepunkt angeben oder <0,0>:
Geben Sie den Einfügepunkt mit der Maus oder durch Eingabe der Koordinaten an.
Drücken Sie die Eingabetaste um den Vorgabewert 0,0 (absoluter Nullpunkt des BKS) zu übernehmen.
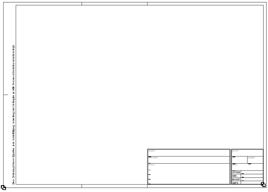
Bitte beachten Sie, dass die Einfügepunkte bei Planrahmen und Planköpfen verschieden sind, wenn sie getrennt eingefügt werden;
siehe Abbildung Einfügepunkte für Planrahmen und Plankopf.
Eigene Planrahmen oder Schriftfelder integrieren:
Wenn Sie eigene Planrahmen oder Schriftfelder integrieren möchten, müssen Sie folgende Namenskonventionen beachten:
Für jeden Planrahmen ist eine Zeichnung erforderlich. Diese müssen im Ordner ATHENA\DataLocal unter folgenden Namen abgespeichert sein.
Dateiname: | Anzeige im Menü: | |
ath_frame_A0-H.dwg | A0-H | vorhanden |
ath_frame_A0-V.dwg | A0-V | vorhanden |
ath_frame_A1-H.dwg | A1-H | vorhanden |
ath_frame_A1-V.dwg | A1-V | vorhanden |
ath_frame_A2-H.dwg | A2-H | vorhanden |
ath_frame_A2-V.dwg | A2-V | vorhanden |
ath_frame_A3-H.dwg | A3-H | vorhanden |
ath_frame_A3-V.dwg | A4-V | vorhanden |
ath_frame_A4-H.dwg | A4-H | vorhanden |
ath_frame_A4-V.dwg | A4-V | vorhanden |
ath_frame_A0-Ueberformat.dwg | A0-Ueberformat | Beispiel |
Beachten Sie beim Erzeugen neuer Planrahmen, den Einfügepunkt des Schriftfeldes mit einem Block (Basispunkt des Blocks!) namens ath_caption_base zu kennzeichnen. Wir empfehlen einen vorhandenen Planrahmen zu kopieren und diesen anzupassen.
Für jedes Schriftfeld ist ebenfalls eine Zeichnung erforderlich, welche im Ordner ATHENA\DataLocal abgespeichert sein muss. Bei Schriftfeldern sind folgende Konventionen zu beachten:
ath_caption_01. dwg | vorhanden |
ath_caption_02. dwg | vorhanden |
ath_caption_03. dwg | vorhanden |
ath_caption_04. dwg | Beispiel |
Sie können weitere Schriftfelder in ATHENA integrieren. Die Endnummern der Dateinamen müssen hochgezählt werden.
Anmerkungen
• Bei der Ausgabe auf Drucker oder Plotter einer Zeichnung mit Planrahmen müssen Sie folgendes beachten:
Wurde der Planrahmen/Plankopf durch Eingabe eines Maßstabes eingefügt, müssen Sie bei der Plotabfrage Maßstab wählen oder [Anpassen] <1>: den Maßstab über das Kontextmenü eingeben, mit dem der Planrahmen in die Zeichnung eingefügt wurde (z.B. 1:1 für Plotter). Natürlich können Sie auch Anpassen eingeben (z.B. für Laserdrucker).
• Wird ein Planrahmen geladen, werden keine Grundeinstellungen (ltfaktor, bemtxt, bemfktr) verändert. Man geht davon aus, dass der Konstrukteur schon vorher seine Umgebung eingestellt hat.
• Die Texte in den Planrahmen und Schriftfeldern sind mehrsprachig gespeichert. Mit dem Befehl
Textsprache setzen können Sie die Texte in einer anderen Sprache anzeigen.
• Sie können einen vorhandenen Planrahmen mit dem Befehl
Objekt ändern austauschen.
ath_plan
Abb. 12.1: Einfügepunkte für Planrahmen und Plankopf
Zugehörige Befehle
Zuletzt geändertes Datum: 20.07.2022