ATHENA 2022 > Befehle und Funktionen > Blech > Blechabwicklung eines Querschnittes
Blechabwicklung eines Querschnittes
 
Multifunktionsleiste:
Register ATHENA > Gruppe Zeichnen > Blechabwicklung eines Querschnittes
Menü:
ATHENA > Blech > Blechabwicklung eines Querschnittes
Werkzeugkasten:
ATH Blech > Blechabwicklung eines Querschnittes
Befehlseingabe:
ath_blec_ab2
Mit dieser Routine erzeugen Sie eine Blechabwicklung incl. Bemaßung mit Hilfe eines Blechquerschnittes. Der Blechquerschnitt muss mit dem Programm Blechquerschnitt erzeugt worden sein.
Berechnungsgrundlage für die Kantlängen sind die blechdickenabhängigen Biegezuschläge der dem Blechquerschnitt zugewiesenen Tabelle. Informationen zu den Biegezuschlägen finden Sie im Kapitel Ausgleichswerte Blech .
ath_blec_ab2
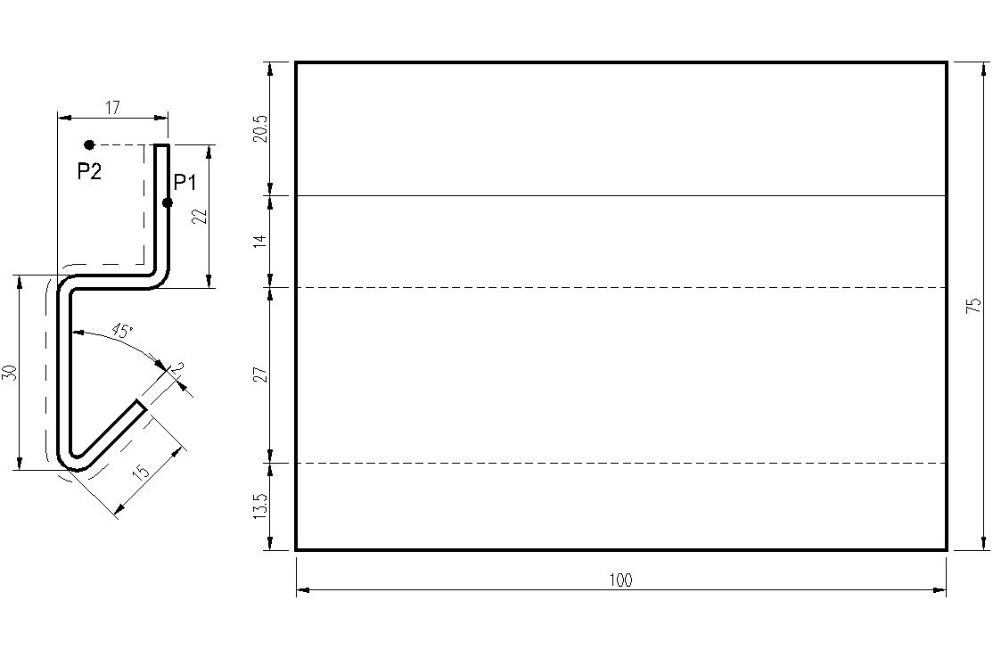
Abb. 5.6: Blechabwicklung eines Querschnittes
Eingabeaufforderung 
Blechquerschnitt wählen oder [?]:
Klicken Sie den Querschnitt an; z.B. P1.
Mit der Option ? rufen Sie die Hilfe auf.
Aufsichtsseite wählen oder [?]:
Bestimmen Sie Aufsichtsseite des Querschnittes; z.B. P2.
Breite des Bleches angeben oder [?]:
Bestimmen Sie die Breite des Bleches durch Zeigen mit der Maus oder Eingabe der Breite.
Einfügepunkt angeben:
Bestimmen Sie den Einfügepunkt der Abwicklung mit der Maus oder durch Eingabe der Koordinaten.
Drehwinkel angeben <0>:
Bestimmen Sie den Drehwinkel der Abwicklung. Geben Sie ENTER ein um den Vorgabewinkel 0° zu übernehmen.
Aufsichtsseite als beschichtete Seite anzeigen [Ja/Nein/?] <Nein>:
Mit der Option Nein wird die Aufsichtsseite nicht gekennzeichnet.
Mit der Option Ja wird die Aufsichtsseite des Bleches mit einer Strichpunktlinie gekennzeichnet.
Anmerkungen 
Die Bemaßung des Blechquerschnittes erfolgt mit den aktuellen Bemaßungseinstellungen.
Die Kontur der Abwicklung wird im Layer des abgewickelten Bleches gezeichnet.
Layer der Kant- und Beschichtungslinien steuern Sie im Dialogfeld Layerzuordnung. Weitere Informationen finden Sie im Kapitel Layerzuordnung .
 
Zuletzt geändertes Datum: 20.07.2022