ATHENA 2021 > Commands and functions > Block > Insert drawing frame
  
Insert drawing frame
Ribbon:
Tab ATHENA > Group Label > Insert drawing frame
Menu:
ATHENA > Block > Insert drawing frame
Toolbar:
ATH Block > Insert drawing frame
ATHENA Block > Insert drawing frame
Command input:
ath_plan
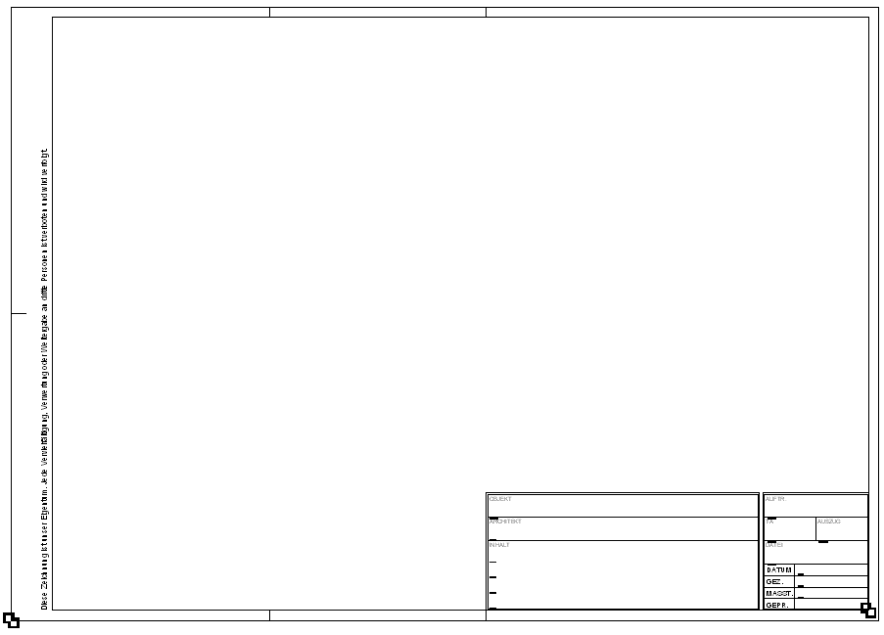
With this command you can insert a drawing frame with text box into the drawing. There is a choice of drawing frames in the formats DIN A4 to DIN A0 (in each case horizontal and vertical) along with three different text boxes. You have the possibility of integrating your own drawing frames and text boxes.
You can use the ATHENA command Complete caption to complete the text box in the drawing frame.
Dialog box Drawing frame/caption
db_ath_plan
Frame
Defines the drawing frame which you insert into the drawing. The storage destination and file name of the frame drawing are shown below the list.
Scale
Defines the scale for the drawing frame and the caption. Here, the scales from the AutoCAD list of scales are made available. You will find further information on this subject in the AutoCAD documentation.
Caption
Defines the caption which you insert into the drawing. Below the preview images the file name of the caption drawing is shown. With the buttons Next and Previous you can page to the next resp. previous view if you have more than six captions.
Tick box Frame
Activates or deactivates insertion of the drawing frame.
Tick box Caption
Activates or deactivates insertion of the caption.
If you now click the button OK, the dialog box is terminated and the following input request appears in the command line:
Input request 
Specify insertion point or <0,0>:
Use the mouse or enter co-ordinates to specify the insertion point.
Press the Enter key to accept the default value 0.0 (absolute origin of the UCS).
Please note that the insertion points with drawing frames and captions are different if they are inserted separately; see illustration Insertion points for drawing frame and caption.
Integrating your own drawing frames and text boxes:
If you would like to integrate your own drawing frames and text boxes, you must observe the following naming conventions:
A drawing is needed for each drawing frame. They must be saved in the folder ATHENA\DataLocal under the following names.
File name:
Display in the menu:
 
ath_frame_A0-H.dwg
A0-H
present
ath_frame_A0-V.dwg
A0-V
present
ath_frame_A1-H.dwg
A1-H
present
ath_frame_A1-V.dwg
A1-V
present
ath_frame_A2-H.dwg
A2-H
present
ath_frame_A2-V.dwg
A2-V
present
ath_frame_A3-H.dwg
A3-H
present
ath_frame_A3-V.dwg
A4-V
present
ath_frame_A4-H.dwg
A4-H
present
ath_frame_A4-V.dwg
A4-V
present
ath_frame_A0-Ueberformat.dwg
A0-Oversize
Example
When creating a new drawing frame, be sure to identify the insertion point of the text box with a block (base point of the block) with the name ath_caption_base. We recommend that an existing drawing frame is copied and adapted.
For each text box a drawing is similarly required which must be saved in the folder ATHENA\DataLocal. With text boxes the following conventions should be followed:
ath_caption_01. dwg
present
ath_caption_02. dwg
present
ath_caption_03. dwg
present
ath_caption_04. dwg
Example
You can integrate further text boxes into ATHENA. The end numbers of the file names must be incremented.
Note 
The following must be noted when outputting a drawing with drawing frame to a printer or plotter:
If the drawing frame/caption has been inserted by entering a scale, then at the plotting query Select scale or [Fit] <1>:, the scale, entered via the context menu, must be entered which was used for inserting the drawing frame (e.g. 1:1 for the plotter). Of course, you can also enter Fit here (e.g. for a laser printer).
If a drawing frame is loaded, no basic settings (ltfaktor, bemtxt, bemfktr) are changed. It is assumed that the designer has already set up his environment.
The texts in the drawing frames and text boxes are saved in multiple languages. You can display the text in another language with the command Set text language.
You can replace an existing drawing frame with the Modify object command.
ath_plan
Insertion points for drawing frame and caption
Associated commands
Complete caption
Read out caption
Index