Detail kopieren
| Multifunktionsleiste: | Register ATHENA > Gruppe Ändern > Detail kopieren |
Menü: | ATHENA > Ändern > Detail kopieren |
Werkzeugkasten: | ATH Ändern
|
Befehlseingabe: | ath_deta |
Mit dieser Funktion können Sie durch wenige Mausklicks einen Zeichnungsausschnitt mit Angabe des Maßstabs kopieren. Überstehende Objekte - z.B. Linien (auch in Blöcken) werden automatisch gestutzt.
ath_deta
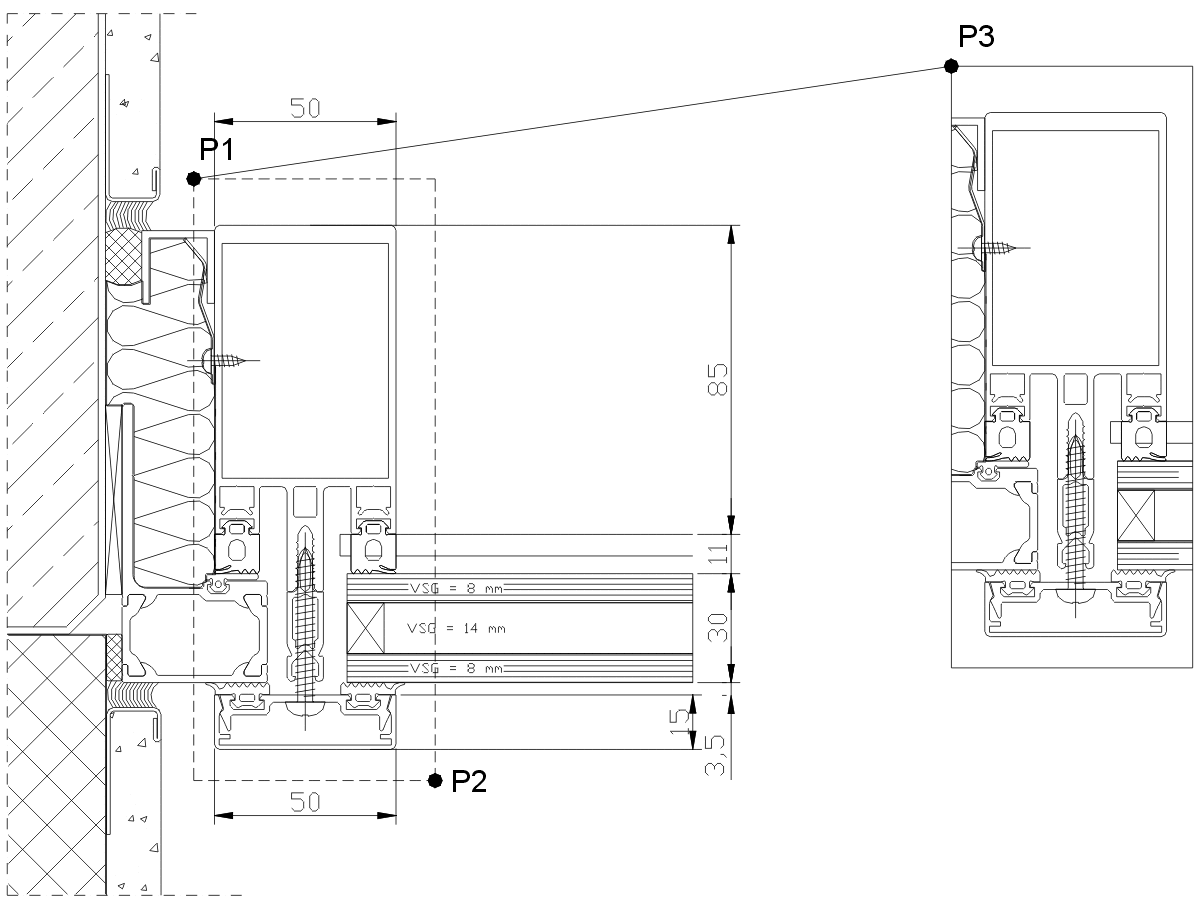
Abb. 9.2: Detail kopieren
Eingabeaufforderung
Objekte kreuzen oder [?]:
Wählen Sie die Objekte die Sie kopieren möchten, indem Sie den ersten diagonalen Eckpunkt mit der Maus angeben;
siehe Abbildung Detail kopieren P1.
Mit der Option ? rufen Sie die Hilfe auf.
Zweiten Punkt angeben oder [?]:
Geben Sie den zweiten Punkt diagonal gegenüber mit der Maus an;
siehe Abbildung Detail kopieren P2.
Ausschnitt platzieren:
Setzen Sie das kopierte Detail in der Zeichnung ab;
siehe Abbildung Detail kopieren P3.
Maßstabsfaktor eingeben oder [?] <1>:
Geben Sie den Maßstab für das Detail ein.
Bei Eingabe von ENTER oder rechtsklick wird der vorgegebene Maßstab (1:1) übernommen.
Anmerkungen
• Beim Stutzen der überstehenden Elemente werden folgende Objekte nicht berücksichtigt:
– Bemaßungen
– Texte
– Solidflächen
– 3D-Flächen
– Attributsdefinitionen.
• Blöcke werden vor dem automatischen Stutzen aufgelöst (Ursprung). Dadurch können sich die Layer der Blockelemente ändern. Sie verlieren den Layer VonBlock (auf dem sie eingefügt wurden) und liegen dann auf dem jeweiligen Objektlayer vor.
• ATHENA Objekte (Folie, Dämmung...) werden aufgelöst. Dadurch verlieren diese Objekte ihre Intelligenz!
• Breite Polylinien, die nicht vollständig in dem definierten Fenster liegen, werden aufgelöst (Ursprung) und verlieren dadurch ihre Breite.
Zuletzt geändertes Datum: 20.07.2022