ATHENA 2021 > Befehle und Funktionen > Bemaßung > Abriss
  
Abriss
Multifunktionsleiste:
Register ATHENA > Gruppe Beschriften > Abriss
Menü:
ATHENA > Bemaßung > Abriss
Werkzeugkasten:
ATH Bemaßung > Abriss
ATHENA Bemaßung > Abriss
Befehlseingabe:
ath_abri
Mit dieser Funktion wandeln Sie mit wenigen Mausklicks ein maßstäblich gezeichnetes und bemaßtes Detail in ein unterbrochenes Detail mit abgerissener Bemaßung um.
ath_abri
Abriss
Eingabeaufforderung 
Aktuelle Spaltbreite = 5
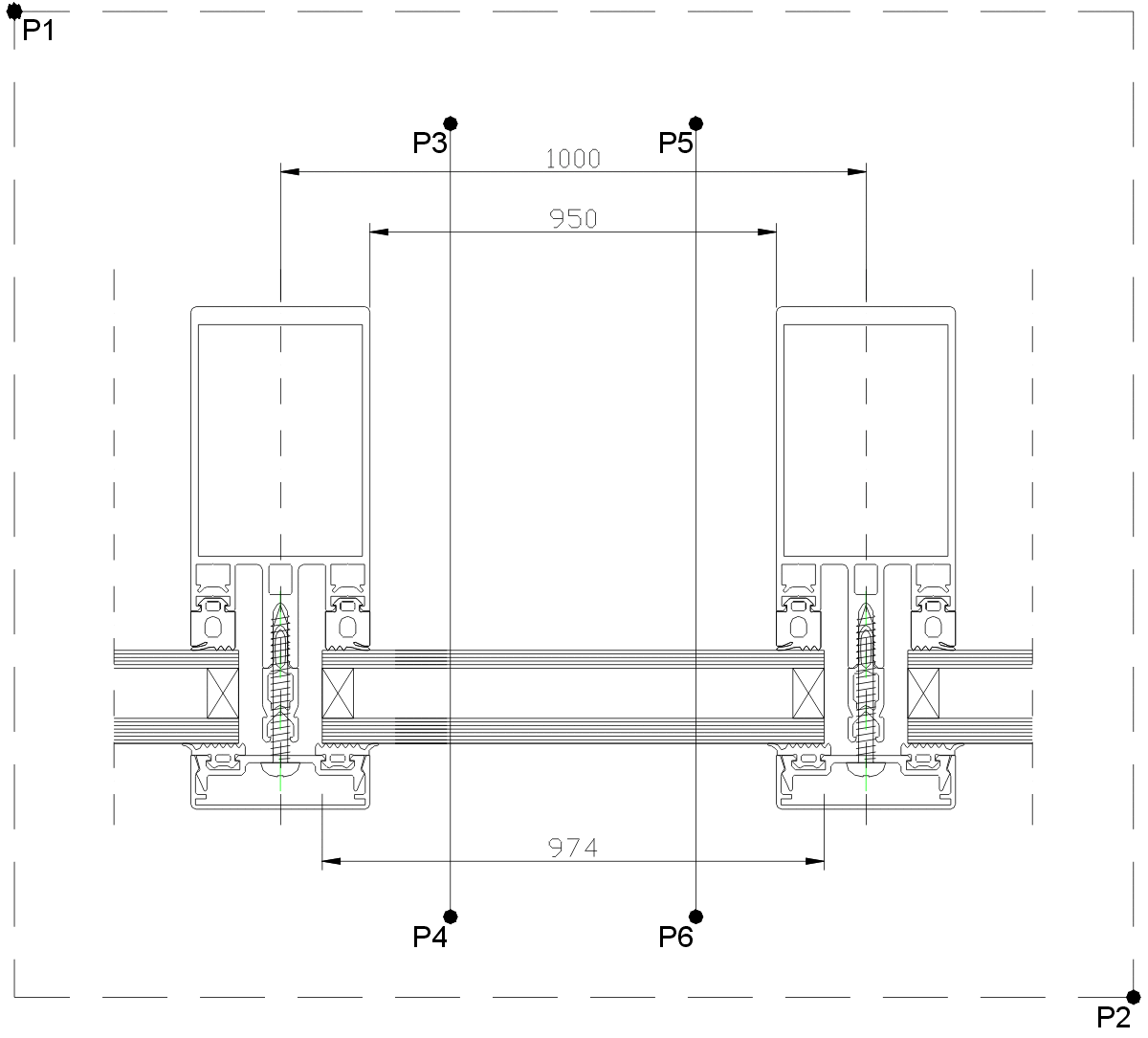
Basismaß zeigen oder [Spalt/?]:
Wählen Sie ein Maß als Basismaß mit der Maus (1000 in Abb. oben). Das Basismaß ist das Definitionsmaß und somit die Berechnungsgrundlage für alle weiteren Maße.
Wählen Sie die Option Spalt um den Abstand zwischen den später erzeugten Abrisslinien zu ändern (Vorgabe 5mm).
Mit der Option ? rufen Sie die Hilfe auf.
Objekte wählen:
Wählen Sie alle Objekte mit der Maus aus, die Bestandteil des Details sind.
Anfangspunkt der ersten Schnittlinie angeben oder [?]:
Geben Sie den Anfangspunkt der ersten Schnittlinie mit der Maus an (P3 in Abb. oben). Beide Schnittlinien werden später bis auf die Spaltluft (in unserem Fall 5 mm) zusammengeschoben.
Nächsten Punkt angeben oder [?]:
Geben Sie den Endpunkt der ersten Schnittlinie (P4 in der Abb. oben) mit der Maus an.
Anfangspunkt der zweiten Schnittlinie angeben oder [?]:
Geben Sie den Anfangspunkt der zweiten Schnittlinie (P5 in der Abb. oben) mit der Maus an.
Nächsten Punkt angeben oder [?]:
Geben Sie den Endpunkt der zweiten Schnittlinie (P6 in der Abb. oben) mit der Maus an.
Anmerkungen 
Ändern von Abrissmaßen:
Sie können Maßtexte von Abrissbemaßungen mit dem Befehl Objekt ändern oder per Doppelklick ändern. Dazu wird das Dialogfeld Maßtext gestartet. Die Funktionsbeschreibung finden Sie im Kapitel Maßtext ändern.
Den Layer für die abgerissene Bemaßung können Sie im Dialogfeld Systemlayer festlegen.
Wenn Sie Abgerissene Maße strecken, schieben, kopieren oder spiegeln, werden die Maße automatisch aktualisiert (neu berechnet).
Zugehörige Befehle
Abgerissene Bemaßung definieren
Abgerissene Bemaßung setzen
Höhenkoten horizontal
Höhenkoten vertikal