ATHENA 2021 > Commands and functions > Modify > Copy detail
  
Copy detail
Ribbon:
Tab ATHENA > Group Modify > Copy detail
Menu:
ATHENA Modify > Copy detail
Toolbar:
ATH Modify
Command input:
ath_deta
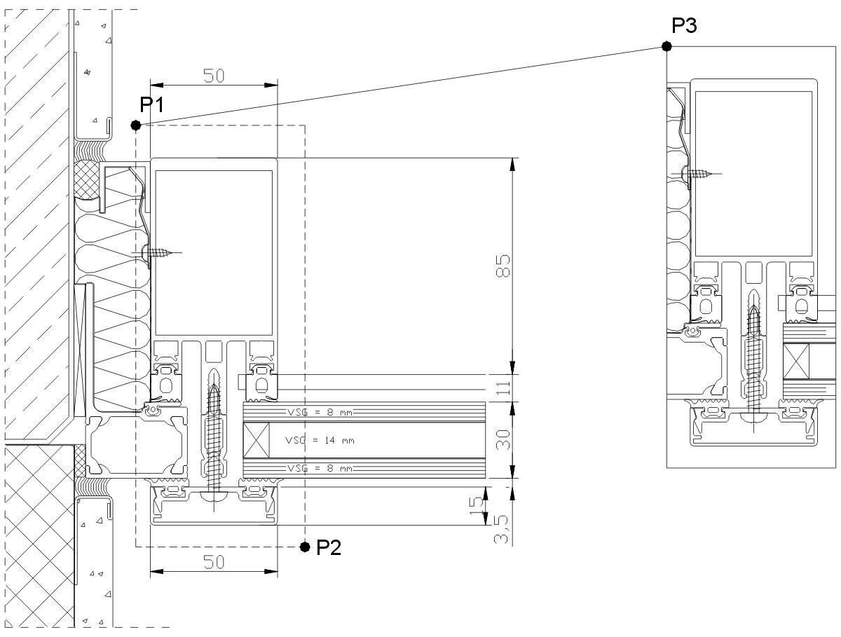
With this function you can copy a drawing detail with specification of the scale just with a few mouse clicks. Overlapping objects - e.g. lines (also in blocks) are automatically trimmed.
ath_deta
Copy detail
Input request 
Cross objects or [?]:
Select the objects which you wish to copy by specifying the first diagonal corner point with the mouse; see illustration Copy detail P1.
With the option ? you call the help.
Specify second point or [?]:
Specify the second point diagonally opposite with the mouse; see illustration Copy detail P2.
Position segment:
Place the copied detail in the drawing; see illustration Copy detail P3.
Enter scale factor or [?] <1>:
Enter the scale for the detail.
The default scale (1:1) is accepted by inputting ENTER or a right click.
Note 
When trimming the overlapping elements, the following objects are not taken into account:
Dimensions
Text
Solid surfaces
3D surfaces
Attribute definitions.
Blocks are released before automatic trimming (Explode). Consequently, the layers of the block elements can change. They lose the layer FromBlock (on which they were inserted) and are then located on the relevant object layer.
ATHENA objects (membrane, insulation, ...) are released. In this way these objects lose their smart features.
Wide polylines which are not completely located in the defined window are released (Explode) and consequently lose their width.