ATHENA 2021 > Commands and functions > Dimensions > Interruption
  
Interruption
Ribbon:
Tab ATHENA > Group Label > Interruption
Menu:
ATHENA > Dimension > Interruption
Toolbar:
ATH Dimension > Interruption
ATHENA Dimension > Interruption
Command input:
ath_abri
With this function you convert with just a few mouse clicks a detail, scaled and dimensioned, into an interrupted detail with interrupted dimension.
ath_abri
Interruption
Input request 
Current gap width = 5
Show base dimension or [Gap/?]:
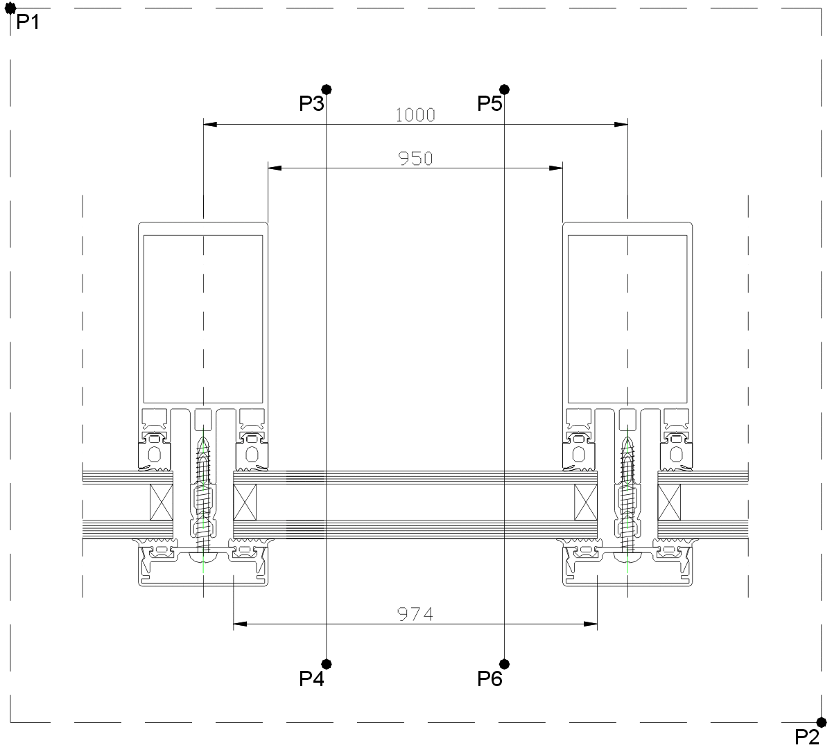
Select a dimension as the base dimension with the mouse (1000 in the illustration above). The base dimension is the definition dimension, forming the basis for calculating all further dimensions.
Select the option Gap to change the spacing between the subsequently produced interruption lines (default 5mm).
With the option ? you call the help.
Select objects:
Select all objects with the mouse which are a constituent part of the detail.
Specify starting point of first intersection line or [?]:
Enter the starting point of the first intersection line with the mouse (P3 in the above illustration). Both intersection lines are later pushed together down to the gap (in our case 5 mm).
Specify next point or [?]:
Enter the endpoint of the first intersection line (P4 in the above illustration) with the mouse.
Specify starting point of second intersection line or [?]:
Enter the starting point of the second intersection line (P5 in the above illustration) with the mouse.
Specify next point or [?]:
Enter the end point of the second intersection line (P6 in the above illustration) with the mouse.
Note 
Changing interrupted dimensions:
You can change dimension texts of interrupted dimensions with the Modify object command or by a double click. To do this the Dialog box Dimension text is started. You will find the functional description in the chapter Change dimension text.
You can define the layer for the interrupted dimensioning in Dialog box System layer.
When you stretch, move, copy or mirror interrupted dimensions, the dimensions are automatically updated (recalculated).
Associated commands
Define interrupted dimension
Set interrupted dimensions
Horizontal levels
Vertical levels