ATHENA 2021 > Commands and functions > Sheet metal > Sheet development of a cross section
  
Sheet development of a cross section
Ribbon:
Tab ATHENA > Group Drawing > Sheet development of a cross section
Menu:
ATHENA > Sheet metal > Sheet development of a cross section
Toolbar:
ATH Sheet metal > Sheet development of a cross section
Command input:
ath_blec_ab2
With this routine you create a sheet development incl. dimensions with the aid of a sheet metal section. The sheet metal section must have been created with the program Sheet metal section.
The calculation basis for the edge lengths are the bending allowances which are dependent on the sheet thickness and are held in the table assigned to the sheet metal section. You will find information on bending allowances in the Chapter Sheet metal computation values.
ath_blec_ab2
Sheet development of a cross section
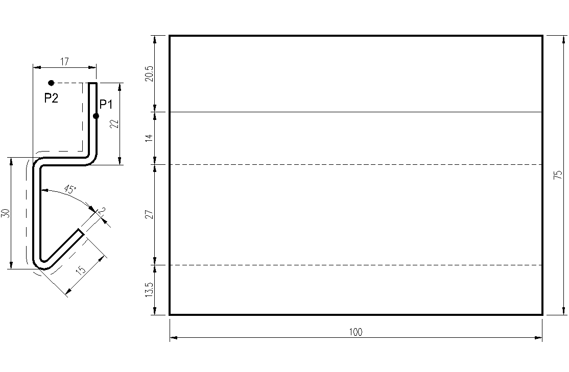
Input request 
Select sheet metal section or [?]:
Click the cross section; e.g. P1.
With the option ? you call the help.
Select the elevation side or [?]:
Specify the elevation side of the section; e.g. P2.
Specify the width of the sheet or [?]:
Define the width of the sheet by pointing with the mouse or entering the width.
Specify insertion point:
Use the mouse or enter coordinates to specify the insertion point of the development.
Specify rotation angle <0>:
Define the rotation angle of the development. Input ENTER to accept the default angle 0°.
Display elevation side as coated side [Yes/No/?] <No>:
With the option No the elevation side is not labeled.
With the option Yes the elevation side of the sheet is identified with a dotted and dashed line.
Note 
The dimensioning of the sheet metal section occurs with the current dimension settings.
The outline of the development is drawn in the layer of the developed sheet.
You control the layer for the fold and coating lines in Dialog box Layer assignment. You will find further information in the Chapter Layer assignment.